Villa in Calasparra, Murcia
- €405,000
Description
NEW BUILD VILLAS IN CALASPARRA, MURCIA
New Build project of beautiful villas in Calasparra, Murcia.
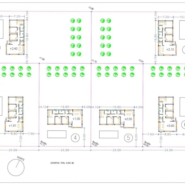
Luxury complex of 6 independent villas with large private swimming pool for each property.
The villas are designed on one level with terraced areas around it and have 3 bedrooms, including dressing room in the master bedroom, 2 bathrooms and a toilet.
These villas build on plots of 1000 M2.
Calasparra is situated in a mountainous region in the northwest of the province of Murcia. In contrast to the surrounding arid terrain, is the ideal place to enjoy the tranquillity and peace that nature offers us. Its gastronomy, its corners, its climate and its people, make a visit to this town mandatory.
Calasparra, surrounded by four different rivers and two marshes, has one of the most amazing natural landscapes in the north-west. You will be amazed by its cave paintings, archaeological sites, culture, outdoor sports and its rice, which could be probably the best you have ever tasted.
983
- Property ID 652-115-10-115
- Price €405,000
- Property Size 104 m²
- Land Area 1000 m²
- Bedrooms 3
- Bathrooms 2
- Property Status New Build
- Property Type Villa
Request Information
You Might Also Like
Apartment in Guardamar del Segura, Alicante
Guardamar del Segura, Zona Pueblo- Beds: 2
- Bath: 1
- 104 m²
- Apartment
Apartment in Lomas De Campoamor, Alicante
Lomas De Campoamor, Costa Blanca- Beds: 2
- Baths: 2
- 83 m²
- Apartment



















