Villa in Baños y Mendigo, Murcia
- €443,500
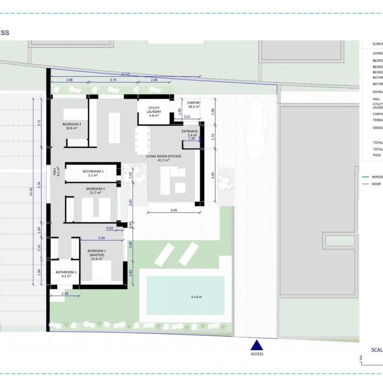
Description
NEW BUILD VILLAS IN ALTAONA GOLF RESORT, MURCIA
New Build residential of beautiful villas in Altaona Golf resort, Murcia.
New Build villas with open plan kitchen, 2 bedrooms, 2 bathrooms, guest toilet, terrace, private garden with pool and parking space..
Features:
• The properties have Energy Certificate Rating A.
• Ducted air conditioning installation with heat pump. Throughout the house except for bathrooms.
• Electric underfloor heating in the living room and bathrooms with individual thermostat per zone.
• Air renewal system in the kitchen, bathrooms, laundry room, and guest toilet.
• Kitchen Includes extractor hood and electric induction hob with 3 cooking points.
• Includes LED lighting in the living room, hallway, and exterior. The rest of the rooms are prepared for the future owner to install their lighting.
• USB sockets in all bedrooms.
• Electronic intercom for access from the exterior to the interior path. Doorbell at the property entrance.
• Home automation system with two smart switches.
• Private landscaped garden with drip irrigation system and the pool.
• Exterior fencing of the urbanisation.
• Vehicle access gates to the urbanisation: Metal sliding gate with remote opening system
Residential located in Altaona Golf just 15 minutes by car from the centre of Murcia capital and 20 minutes from the beaches you can enjoy the tranquillity and security offered by the Golf Course that has 18 holes and the comfort to live close to all services.
Murcias airport Corvera only 15 minutes drive away.
983
- Property ID 1927-115-10-115
- Price €443,500
- Property Size 143 m²
- Land Area 575 m²
- Bedrooms 2
- Bathrooms 2
- Property Status New Build
- Property Type Villa
Request Information
You Might Also Like
Town House in Guardamar del Segura, Alicante
Guardamar del Segura, Costa Blanca- Beds: 2
- Bath: 1
- 45 m²
- Townhouse



















